FlameSEAL Tanking

404

FlameSEAL is an APP-modified bitumen membrane reinforced with 180 gsm non-woven polyester fabric. FlameSEAL has good flexibility at both high and low temperatures.

G Drain Pic.png MaxiSTUD Drainage.jpg Geotextile Non Woven Protection.jpg

FlameSEAL has many outstanding features, making it the ultimate choice when selecting a torch-on membrane. It's superior qualities of tensile strength, elongation and tear resistance sets FlameSEALapart as the ideal durable solution for your waterproofing requirements. A comparison of product data sheets shows FlameSEAL to have the highest mechanical properties of any modified bitumen available.

In particular, FlameSEAL has...

  • High tensile strength and tear resistance
  • Good elongation
  • Excellent puncture resistance
  • Resistance to rot
  • BRANZ Appraised

Durability and Performance Warranty

When installed in accordance with the manufacturer's specifications FlameSEAL is performance warranted to remain waterproof for up to the first 15 - 20 years of an indefinite service life. A full product warranty is issued on completion, together with a workmanship warranty from the approved applicator.

Poly-Base.jpg

Downloads

Product Information

  • FlameSEAL Brochure

    FlameSEAL Brochure

    pdf PDF (0.94MB)

  • Sealco FlameSEAL Manual

    Sealco FlameSEAL Manual

    pdf PDF (17.39MB)

  • bituFLAME BRANZ Appraisal

    bituFLAME BRANZ Appraisal

    pdf PDF (0.09MB)

  • Care & Maintenance 2013

    Care & Maintenance 2013

    pdf PDF (0.06MB)

  • Concrete Substrate Readiness Checklist

    Concrete Substrate Readiness Checklist

    pdf PDF (0.07MB)

  • Plywood Substrate Readiness Checklist

    Plywood Substrate Readiness Checklist

    pdf PDF (0.08MB)

  • Quality Control Checklist 2013

    Quality Control Checklist 2013

    pdf PDF (0.21MB)

  • Deck Quality Control Checklist

    Deck Quality Control Checklist

    pdf PDF (0.12MB)

  • Levels of Tanking

    Levels of Tanking

    pdf PDF (0.33MB)

  • Tanking Quality Control Checklist

    Tanking Quality Control Checklist

    pdf PDF (0.10MB)

  • Sealco Accessories 2016

    Sealco Accessories 2016

    pdf PDF (5.52MB)

  • GreenSEAL G-Drain Technical Data

    GreenSEAL G-Drain Technical Data

    pdf PDF (0.28MB)

  • GreenSEAL Q-Drain Technical Data

    GreenSEAL Q-Drain Technical Data

    pdf PDF (0.22MB)

  • MaxiSTUD Technical Data

    MaxiSTUD Technical Data

    pdf PDF (0.48MB)

Architectural Information

  • 4131WP Sealco FlameSeal Torch on Tanking Membranes

    4131WP Sealco FlameSeal Torch on Tanking Membranes

    pdf PDF (0.13MB)

MSDS Information

  • bituFLAME MSDS

    bituFLAME MSDS

    pdf PDF (0.17MB)

  • MSDS bituPRIME 1

    MSDS bituPRIME 1

    pdf PDF (0.02MB)

  • Pluvitec MSDS

    Pluvitec MSDS

    pdf PDF (2.08MB)

  • SDS PRIMERTEC

    SDS PRIMERTEC

    pdf PDF (1.64MB)

  • Tixoplast

    Tixoplast

    pdf PDF (2.84MB)

Drawings

Tanking

  • Blockwall - Floor Joint 1-1

    Blockwall - Floor Joint 1-1

    dwg DWG (0.05MB) rvt RVT (1.58MB) pdf PDF (0.16MB)
  • Blockwall - Floor Joint 1-2

    Blockwall - Floor Joint 1-2

    dwg DWG (0.03MB) rvt RVT (1.01MB) pdf PDF (0.13MB)
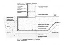
  • Blockwall - Floor Joint 2-1

    Blockwall - Floor Joint 2-1

    dwg DWG (0.05MB) rvt RVT (1.59MB) pdf PDF (0.17MB)
  • Blockwall - Floor Joint 2-2

    Blockwall - Floor Joint 2-2

    dwg DWG (0.05MB) rvt RVT (1.59MB) pdf PDF (0.16MB)
  • Blockwall - Floor Joint 2-3

    Blockwall - Floor Joint 2-3

    dwg DWG (0.03MB) rvt RVT (1.01MB) pdf PDF (0.15MB)
  • Concrete - Pipe Penetration

    Concrete - Pipe Penetration

    dwg DWG (0.03MB) rvt RVT (0.97MB) pdf PDF (0.10MB)
  • Construction Joint

    Construction Joint

    dwg DWG (0.03MB) rvt RVT (0.98MB) pdf PDF (0.10MB)
  • Expansion Joint

    Expansion Joint

    dwg DWG (0.03MB) rvt RVT (0.97MB) pdf PDF (0.10MB)
  • Expansion Joint 2

    Expansion Joint 2

    dwg DWG (0.03MB) rvt RVT (0.97MB) pdf PDF (0.10MB)
  • Exterior Concrete Corner

    Exterior Concrete Corner

    dwg DWG (0.03MB) rvt RVT (0.97MB) pdf PDF (0.10MB)
  • Ground Beam

    Ground Beam

    dwg DWG (0.03MB) rvt RVT (0.95MB) pdf PDF (0.10MB)
  • Interior Concrete Corner

    Interior Concrete Corner

    dwg DWG (0.03MB) rvt RVT (0.97MB) pdf PDF (0.10MB)
  • Lift Pit

    Lift Pit

    dwg DWG (0.04MB) rvt RVT (1.02MB) pdf PDF (0.14MB)
  • Pile Cap Detail

    Pile Cap Detail

    dwg DWG (0.03MB) rvt RVT (0.95MB) pdf PDF (0.09MB)
  • Precast Wall - Floor Joint

    Precast Wall - Floor Joint

    dwg DWG (0.04MB) rvt RVT (1.54MB) pdf PDF (0.16MB)
  • Vertical Termination 1 - Carpark

    Vertical Termination 1 - Carpark

    dwg DWG (0.03MB) rvt RVT (0.97MB) pdf PDF (0.11MB)
  • Vertical Termination 1

    Vertical Termination 1

    dwg DWG (0.03MB) rvt RVT (0.96MB) pdf PDF (0.10MB)
  • Vertical Termination 2

    Vertical Termination 2

    dwg DWG (0.02MB) rvt RVT (0.95MB) pdf PDF (0.09MB)
  • Vertical Termination 3

    Vertical Termination 3

    dwg DWG (0.03MB) rvt RVT (0.99MB) pdf PDF (0.10MB)
  • Wall Corner

    Wall Corner

    dwg DWG (0.03MB) rvt RVT (0.97MB) pdf PDF (0.10MB)
  • Wall T-Junction

    Wall T-Junction

    dwg DWG (0.03MB) rvt RVT (0.97MB) pdf PDF (0.10MB)

Get In Touch

Many factors need to be considered in order to come to a decision for your waterproofing. Sealco Waterproofing Systems have experienced staff that will be able to guide you through the best solution to your waterproofing needs.

Our Locations

6 Caerphilly Place
Hillsborough, Christchurch 8022
0508 Sealco (292837)
PO Box 35-190, Christchurch 8640 admin@sealco.co.nz

Online Distribution
180 Savill Drive
Otahuhu
Auckland 2024